Znak: ROT.221.1.2026 Chęciny, dn. 16.02.2026 r.
p.o. Dyrektora Zamku Królewskiego w Chęcinach
działając na podstawie art. 35 ust. 1 i 2 ustawy z dnia 21 sierpnia 1997 roku o gospodarce nieruchomościami (t.j. Dz. U. z 2024 r. poz. 1145 z późn. zm.) podaje do publicznej wiadomości na okres 21 dni:
Wykaz nieruchomości przeznaczonych do oddania w dzierżawę na okres 10 lat stanowiących budynek usługowo-handlowy wraz z terenem niezbędnym do korzystania
- Oznaczenie nieruchomości według księgi wieczystej oraz katastru nieruchomości:
- Położenie działki: Starochęciny obr. 0014, Gmina Chęciny
- Numery działek i powierzchnia: działka nr 22 o pow. ogólnej 0,3367 ha i 23 o pow. ogólnej 0,2686 ha, w części umożliwiającej korzystanie z budynku przeznaczonego do dzierżawy wraz z ogródkiem
- Numer księgi wieczystej: KI1L/00010603/7
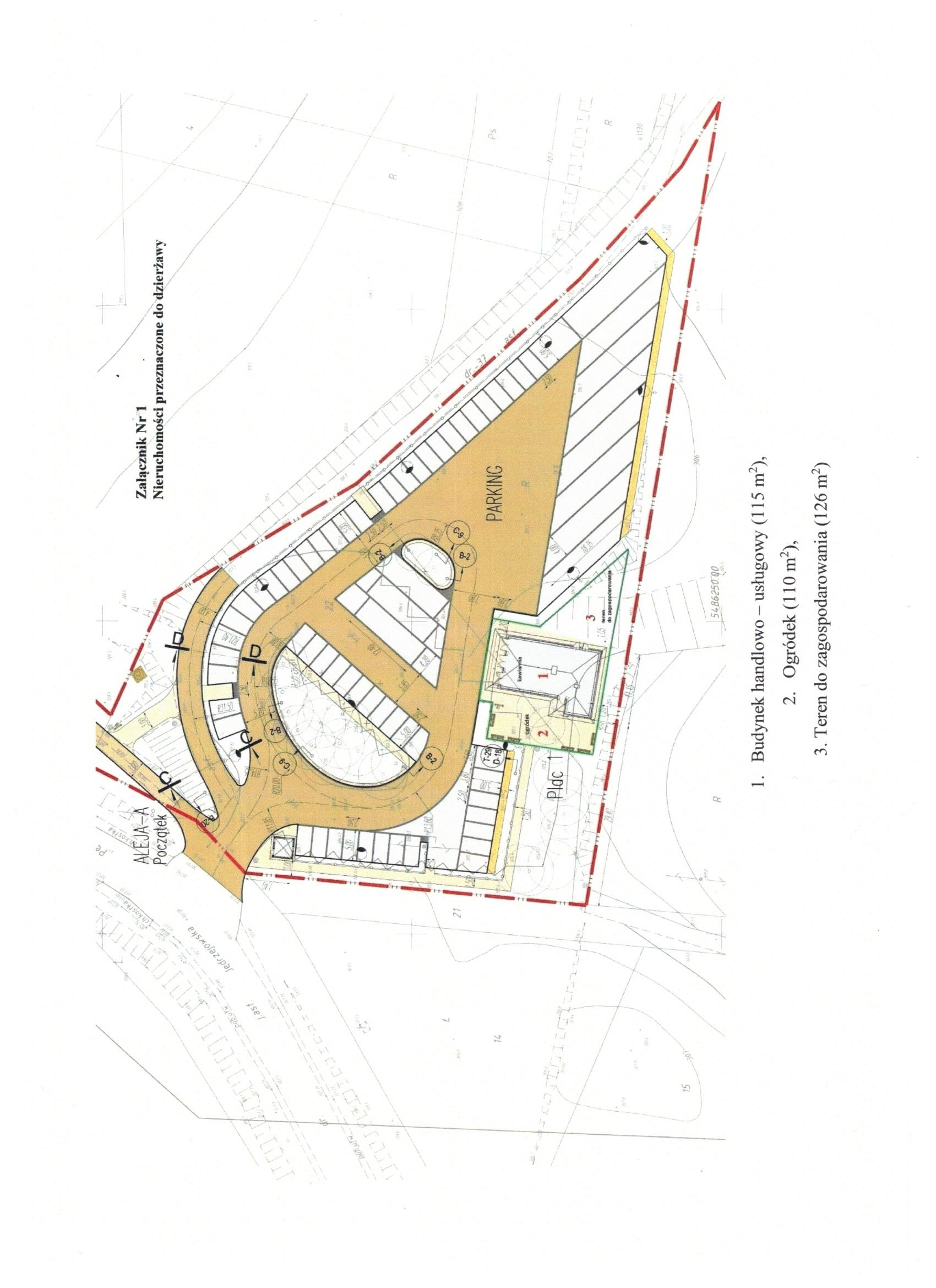
- Opis nieruchomości: Do wydzierżawienia przeznaczony jest budynek handlowo - usługowy o powierzchni 115 m2 wraz z gruntami o powierzchni 110 m2 oraz terenem do zagospodarowania o powierzchni 126 m2 stanowiących własność Gminy Chęciny, położonych na nieruchomościach oznaczonych w ewidencji gruntów i budynków numerami działek 22 i 23 znajdujących się w obrębie geodezyjnym Starochęciny obr. 14, u podnóża Wzgórza Zamkowego. Budynek przeznaczony jest wyłącznie do sprzedaży artykułów spożywczych i gastronomicznych. Według ewidencji gruntów działki zostały sklasyfikowane, jako Bi (inne tereny budowlane). Nieruchomości oznaczone jako działki nr 22 i 23 w Starochęcinach wpisane zostały do rejestru zabytków nieruchomych Województwa Świętokrzyskiego jako otoczenie zabytku - teren południowego przedpola historycznego układu urbanistyczno-krajobrazowego Chęcin z ruinami średniowiecznego zamku. (Wszelkie prace przy obiekcie wymagają zgody Świętokrzyskiego Wojewódzkiego Konserwatora Zabytków w Kielcach oraz właściwych organów).
Lokal pozostaje obecnie w posiadaniu dzierżawcy na podstawie obowiązującej umowy dzierżawy, która ulega rozwiązaniu z dniem 30 kwietnia 2026 r. Zawarcie kolejnej umowy dzierżawy z innym podmiotem może nastąpić najwcześniej z dniem 18 maja 2026 r.
WARUNKI NAJMU, KTÓRE ZNAJDĄ SIĘ W TREŚCI UMOWY:
Pkt I
- Zakazuje się umieszczania na obiekcie odstających od jego bryły konstrukcji niezwiązanych z prowadzoną działalnością, nośników oraz szyldów.
- Zakazuje się umieszczania w otoczeniu budynku handlowo-usługowego urządzeń
i automatów, w szczególności lodówek z napojami. - Nakazuje się utrzymywanie obiektu w należytym stanie estetycznym, w szczególności usuwania naklejek, plakatów, reklam, ogłoszeń oraz napisów i rysunków w ciągu
48 godzin od ich pojawienia się. - Najemca zobowiązany jest utrzymywać czystość na terenie dzierżawy oraz posiadać umowę na odbiór odpadów związanych z prowadzoną działalnością.
Pkt II
- Czynsz dzierżawny zostanie powiększony o podatek VAT według obowiązującej stawki.
- Czynsz płatny miesięcznie.
- Dzierżawca oprócz czynszu dzierżawy zobowiązany jest do ponoszenia opłat za media.
- Podatki oraz ciężary związane z przedmiotem dzierżawy ponosi Dzierżawca.
Gmina Chęciny jest obecnie w trakcie opracowywania dokumentacji projektowej dotyczącej rozbudowy wskazanego powyżej budynku handlowo-usługowego. Z chwilą oddania tej powierzchni do użytkowania stawka czynszu ulegnie podwyższeniu o dodatkowe 20 % (niezależnie od wzrostu 10% co dwa lata w okresie trwania umowy).
- Przeznaczenie nieruchomości i sposób jej zagospodarowania:
- Przedmiotowa nieruchomość położona jest na obszarze, dla którego brak jest planu zagospodarowania przestrzennego.
- Budynek wraz z terenem niezbędnym do korzystania przekazywany jest do najmu na cele sprzedaży artykułów spożywczych oraz prowadzenia usług gastronomicznych.
- Termin zagospodarowania nieruchomości: Nie dotyczy
- Wysokość opłat z tytułu użytkowania, najmu lub dzierżawy: 15 000,00 zł. plus podatek VAT 23% - miesięcznie.
- Termin do wnoszenia opłat: do 10 dnia każdego miesiąca
- Zasady aktualizacji opłat:
- co dwa lata, od dnia podpisania umowy, czynsz dzierżawy wzrasta o 10% wartości kwoty. Po rozbudowie lokalu czynsz wzrośnie o dodatkowe 20%.
- Wysokość stawek procentowych opłat z tytułu użytkowania wieczystego: Nie dotyczy
Nieruchomość nie jest obciążona ciężarami i hipotekami i nie toczy się w stosunku do niej żadne postępowanie.
Przedmiotowy wykaz podlega wywieszeniu na tablicy ogłoszeń znajdującej się w siedzibie Zamku Królewskiego w Chęcinach, Urzędu Gminy i Miasta w Chęcinach na okres 21 dni od dnia 16.02.2026 roku oraz publikacji na stronie internetowej Zamku Królewskiego w Chęcinach www.zamek.checiny.pl, Urzędu Gminy i Miasta w Chęcinach www.checiny.pl i w Biuletynie Informacji Publicznej Urzędu Gminy i Miasta w Chęcinach https://checiny.biuletyn.net/
Usytuowanie przedmiotu najmu przedstawia rysunek poglądowy stanowiący załącznik graficzny Nr 1 do niniejszego wykazu, zamieszczony na stronie internetowej tut. Urzędu i w Biuletynie Informacji Publicznej oraz na stronie Zamku Królewskiego w Chęcinach.
Termin, miejsce i warunki przetargu zostaną podane do publicznej wiadomości w odrębnym ogłoszeniu.
Szczegółowych informacji w tym zakresie udziela biuro Zamku Królewskiego w Chęcinach, ul. Małogoska 7, 26-060 Chęciny, Tel. 41/ 308-00-48.
Renata Janusz
p.o. Dyrektora Zamku Królewskiego w Chęcinach

